- 1.195.000€
Overview
- House
- 6
- 6
- 460 m²
Description
Charming Rustic Finca with Panoramic Views in Mijas Costa (Entrerríos) – Style, Space, and Privacy with Easy Access, Just Minutes from the Sea
Set in a privileged natural environment and just 10 minutes' drive from the beaches of La Cala de Mijas, this finca offers the perfect balance between rural tranquility and proximity to all amenities, with easy access to Fuengirola, Marbella, and Málaga Airport.
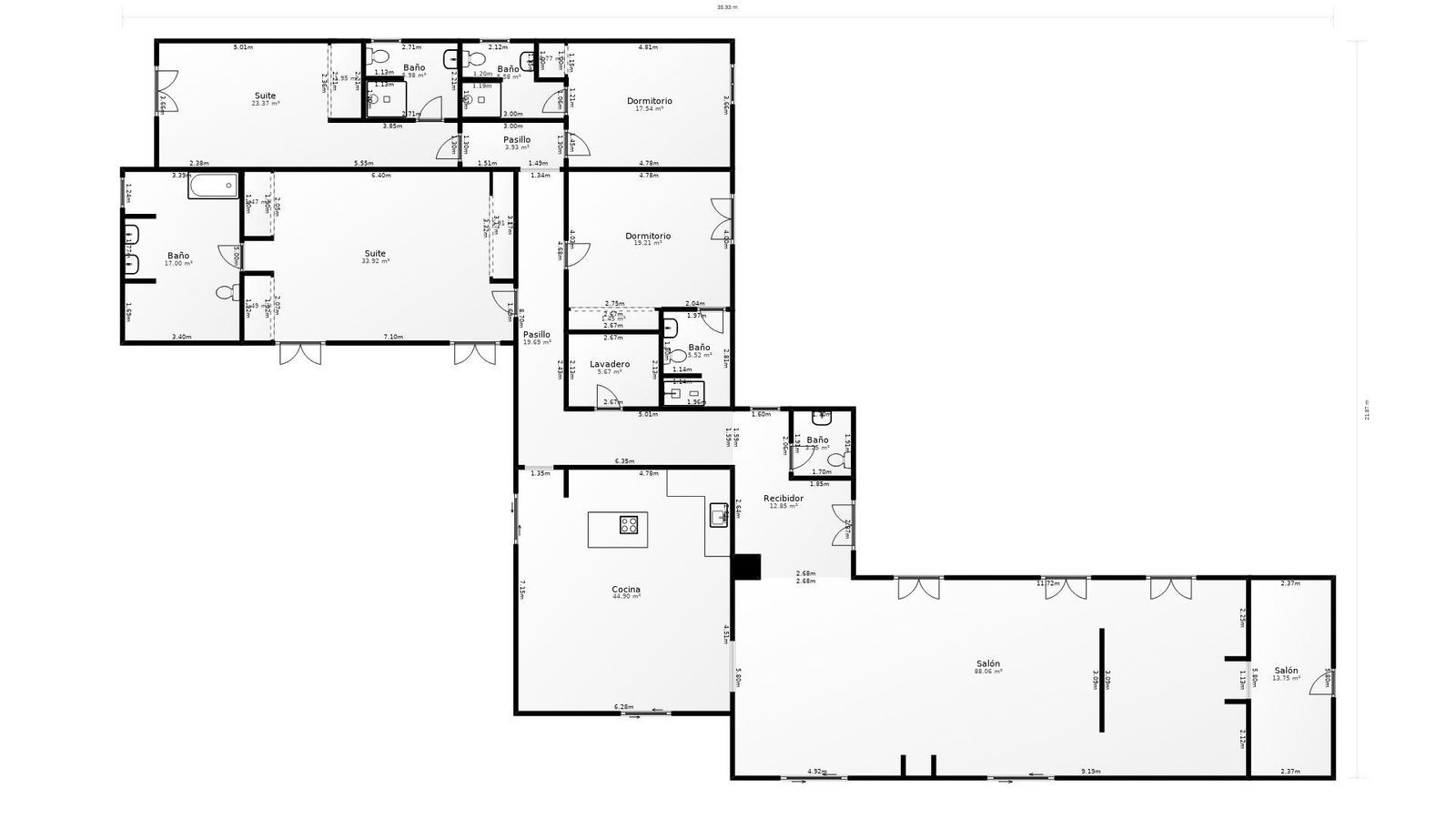
The property consists of a spacious main house built entirely on one level, offering 460 m² distributed across 4 large bedrooms with en-suite bathrooms, a bright living room with high ceilings and fireplace, and a generous kitchen also featuring a fireplace.
In addition, there is a fully independent apartment with 2 bedrooms, a kitchen, and a bathroom — ideal for guests, staff, or holiday rentals.
The exterior features a mature garden of 4,395 m² with a private pool, a charming front patio, rear terrace with direct pool access, a garage, and parking space for several vehicles.
Additional highlights include: double glazing, solar panels for hot water, and municipal drinking water.
With excellent potential as a family home, holiday retreat, or rural tourism investment, this finca is a rare opportunity in the heart of the Costa del Sol.
Contact us today for more information or to schedule a viewing!
Details
Updated on November 4, 2025 at 4:46 pm-
Price 1.195.000€
-
Property Size 460 m²
-
Bedrooms 6
-
Bathrooms 6
-
Property Type House
Similar Listings
Alhaurín de la Torre, Costa del Sol, Málaga
- 1.350.000€
Alhaurín el Grande, Costa del Sol, Málaga
- 475.000€
Casarabonela, Costa del Sol, Málaga
- 349.000€














































