- 420.000€
Overview
- House
- 4
- 3
- 706 m²
Description
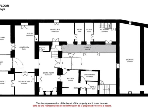
Located in the very centre of Ardales, this magnificent property offers enormous potential, whether you're looking for a spacious family home or a project to develop a B&B or boutique hotel. Just steps away from the town hall and local shops, this 700m² house stands out for its traditional charm and endless possibilities.
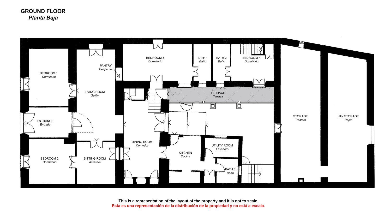
The house currently features 4 bedrooms and 3 bathrooms, but its layout allows for the creation of several additional rooms, including the possibility of an independent apartment on the top floor. The property has undergone partial renovations while maintaining its original character with thick walls, clay hydraulic floors, high beamed ceilings, and traditional wooden doors.
Two of the bedrooms have been refurbished and include en-suite bathrooms and built-in wardrobes. At the heart of the house is a charming Andalusian patio that not only fills the rooms with light but also provides access to the pool area and a private orchard, ideal for creating a beautiful garden.
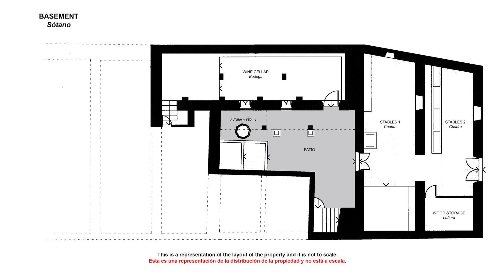
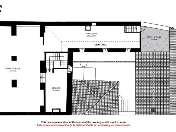
The property also features an old stable that could be converted into bedrooms or common areas. On the top floor, there is a spacious, open-plan attic, the former hayloft, offering the potential for more rooms and access to a terrace with spectacular views of the valley and the village.
If you are looking for a large property or a business project in a tourist town like Ardales, known for the Caminito del Rey and the Gaitanes Natural Park, this house offers endless possibilities.
Details
Updated on January 13, 2026 at 5:43 pm-
Price 420.000€
-
Property Size 706 m²
-
Bedrooms 4
-
Bathrooms 3
-
Property Type House
Similar Listings
Alhaurín el Grande, Costa del Sol, Málaga
- 2.500.000€
Alhaurín el Grande, Costa del Sol, Málaga
- 749.000€













































