- 210.000€
Overview
- 0
- 0
Description
Build NOW! Plot with BUILDING LICENSE and ICIO PAID in Loma del Flamenco (Mijas Golf).
Magnificent plot in the exclusive urbanization Loma del Flamenco (Mijas Golf), just 5 minutes from El Esparragal. The urbanization features completed roads, roundabouts, and services.
The Major Competitive Advantage: Forget the frustration and uncertainty of licenses. This land is sold with the Municipal Building License already granted (ICIO tax paid – €5,000) and an approved basic project.
The buyer can start building immediately!
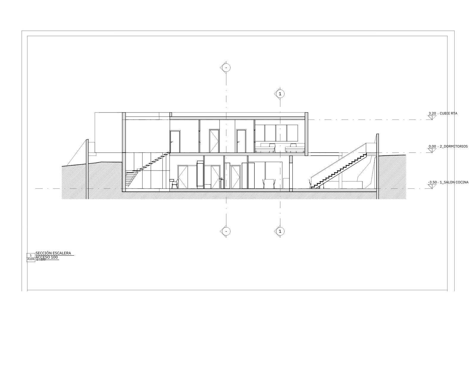
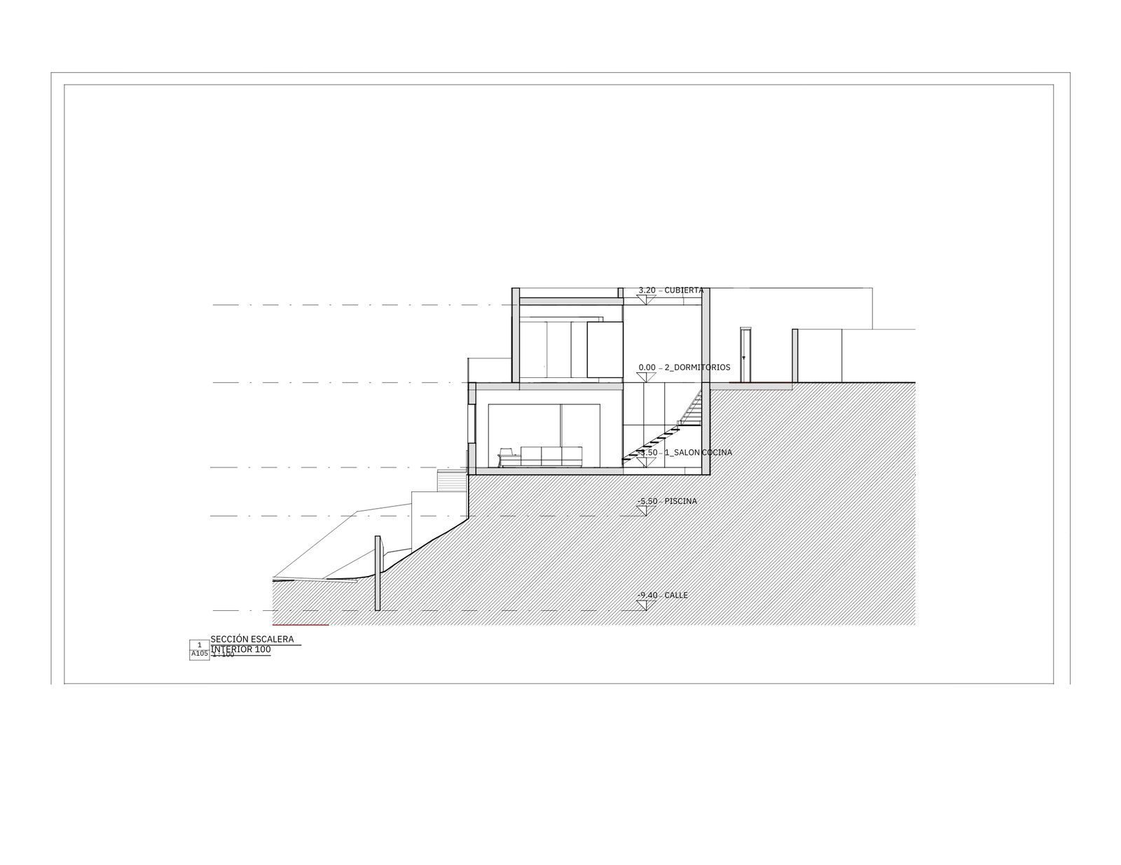
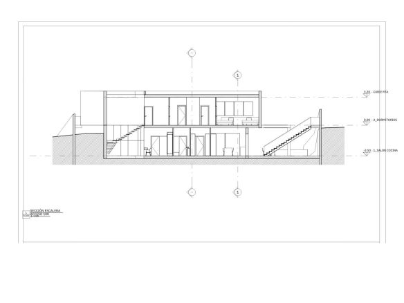
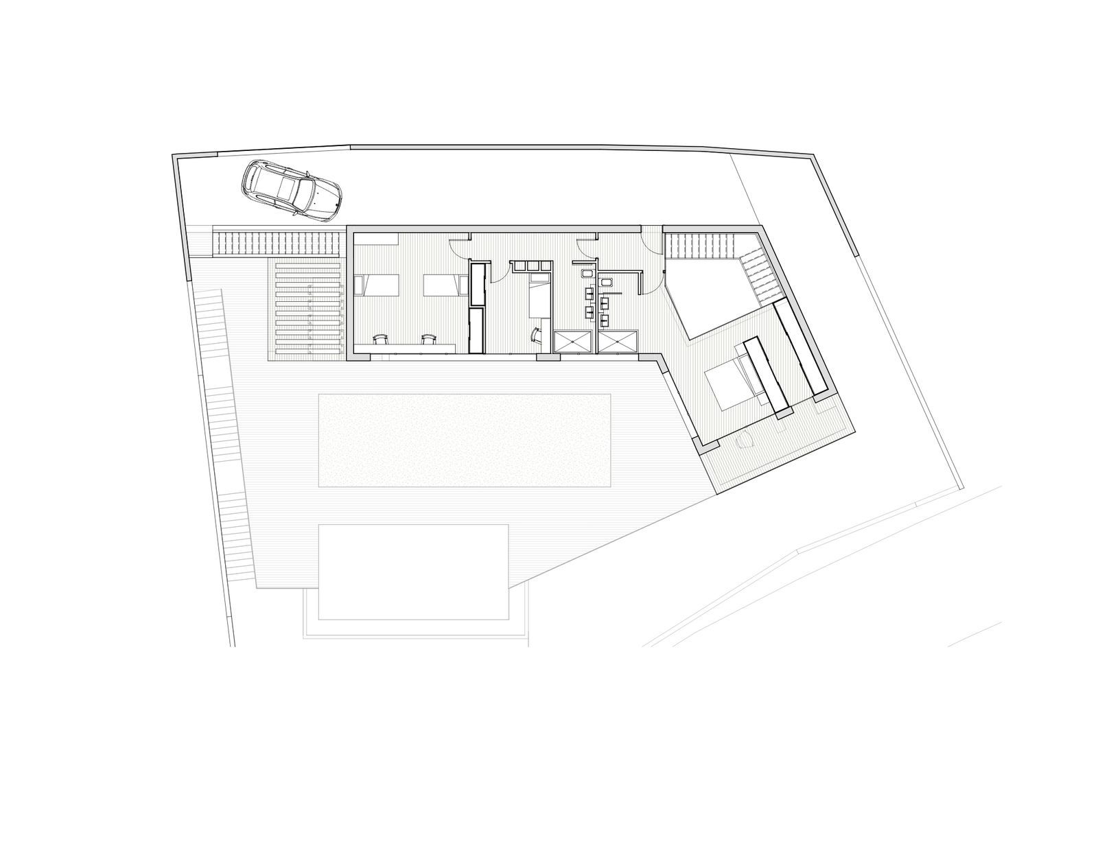
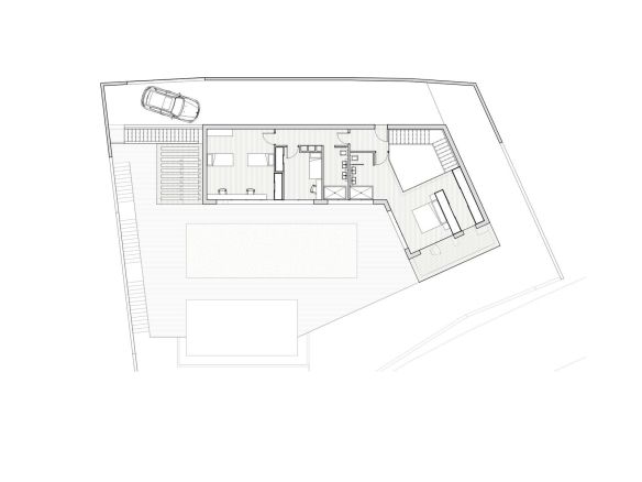
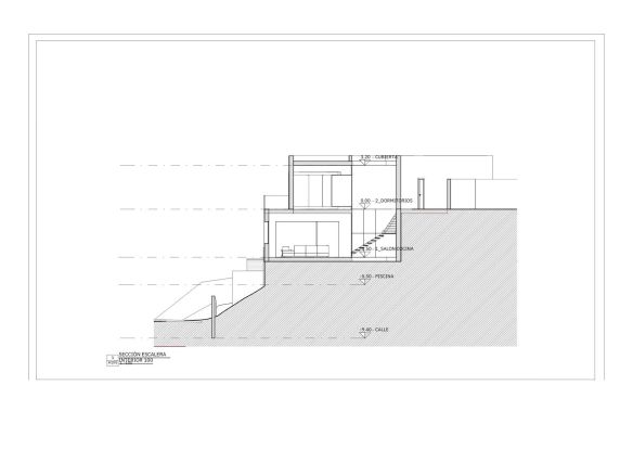
APPROVED PROJECT DETAILS (Single-Family Home):
The projected dwelling is modern and functional, with two levels arranged around a side patio that provides illumination and ventilation.
Unbeatable Views: The house and the approved swimming pool are designed to take advantage of the incredible open views of the imposing Mijas Mountains (Sierras de Mijas) and spectacular sea views from the upper floor.
Layout:
Ground/Access Level (Day Area): Living room, kitchen/dining room, toilet, interior patio, and office.
Upper Level (Night Area): Master bedroom with en-suite bathroom and dressing room, plus two secondary bedrooms and a bathroom.
Additional Benefits Included:
APPROVED SWIMMING POOL in the project (ready for execution).
Approved Basic Project (possibility of adjustments with the architect).
Up-to-date with all urban charges (certificate of free debt available).
Ideal for: Private individuals who wish to build their home without bureaucratic waits or small developers who need to start construction urgently.
Documentation available for the investor/buyer: Simple Note (Nota Simple), Appraisal Report, Plans, and License Certificate.
It's time to start building, not waiting!
Details
Updated on January 19, 2026 at 6:22 pm-
Price 210.000€
-
Bedroom 0
-
Bathroom 0
Similar Listings
Alhaurín el Grande, Costa del Sol, Málaga
- 610.000€
Alhaurín de la Torre, Costa del Sol, Málaga
- 369.900€






