- 595.000€
Overview
- House
- 6
- 4
- 407 m²
Description
This impressive property is situated in an amazing location with views to the bay of Málaga and the Sierra de Mijas mountains.
Less than 4km to the beautiful village of Alhaurín de la Torre, the well-known Lauro Golf course less than a 5-minute drive away, only 20 minutes to Málaga city and the airport, this property offers a very spacious family home or an opportunity for a rural B&B business.
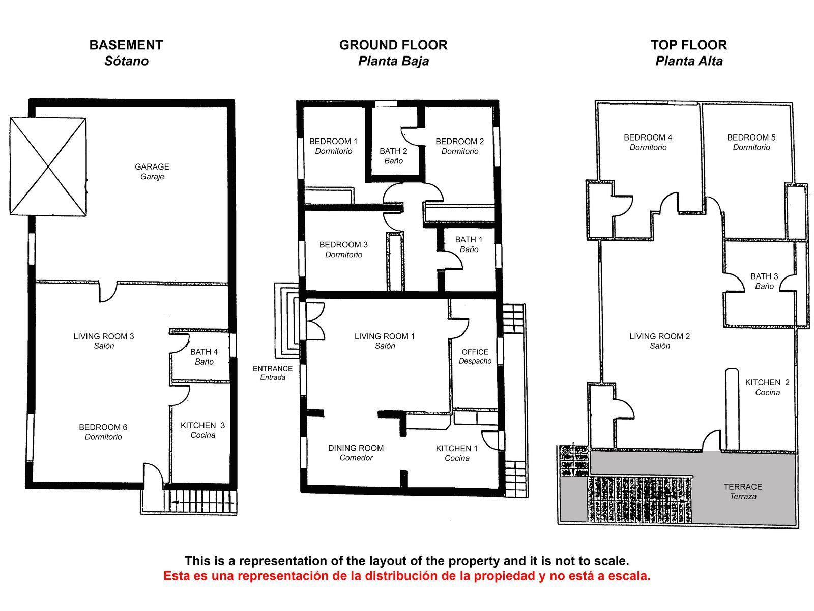
The house is distributed over 3 independent living areas.
Access to the 2-bedroom apartment is via an external staircase. The apartment has an open plan living room with kitchen / dining area, shared bathroom, and a private terrace from where you can enjoy incredible views to the sea and mountains.
The ground floor benefits from a spacious living room with fireplace, kitchen / diner, 4 bedrooms (master ensuite), and a guest bathroom. A covered porch offers a great further dining area with views to the bay of Málaga.
The 155m² basement has its own access and offers either a huge storage area or an independent living area with bathroom. The garage has space for 2 or 3 cars. Adjacent to the house is a separate viewing area, which if required would offer more parking.
To the rear of the house is the very private terraced area with swimming pool. The garden offers privacy as there are no immediate neighbours and boasts views to the bay of Málaga.
Details
Updated on December 9, 2025 at 12:56 pm-
Price 595.000€
-
Property Size 407 m²
-
Bedrooms 6
-
Bathrooms 4
-
Property Type House
Similar Listings
Alhaurín el Grande, Costa del Sol, Málaga
- 950.000€









































